4 1/2 Zimmerwohnung in Lotzwil, Dachwohnung, Eigentumswohnung, Immobilien, Oberaargau Langenthal, Immobilienmakler, Immobilienvermittlung, Verkehrswertschätzung, Vermittlung, Immobilienverkauf Schick Immobilien Langenthal, Immobilienmakler, Immobilienbewertung

Langenthal, sonnig und ruhig

Wohnung mit 4 1/2 Zimmer

und Einstellhallenplatz

 

Oberhardstrasse 31

4900 Langenthal

Beschreibung

"Erschwingliche 4 1/2 Zimmerwohnung Nähe Bahnhof SBB, Einkauf und Schulen."

Geniessen Sie ab jetzt die Abendsonne im obersten Stockwerk auf Ihrem eigenen Balkon.

Die gemütliche Wohnung befindet sich in der schönen, grünen Wohnanlage Oberhard im 3. Obergeschoss (Gebäude ohne Lift) mit optimaler Südwest-Ausrichtung. Sonnig und ruhig.

 

Fakten und Zahlen

 

Standort

Oberhardstrasse 31

4900 Langenthal

 

Mehrfamilienhaus mit 8 Wohnungen, angebaut an Nr. 31a/31b


Grundstück:             1'916m2

Stockwerkeinheiten           24

Baujahr MFH:                1985
Lift:                                  nein

Wohnung
Zimmer:                         4 1/2

Geschoss:                     3.OG
Wohnfläche:                  90m2
Balkon:                                ja

---------------------------------------

Kaufpreis        

Wohnung                295'000.-

Einstellhallenplatz     25'000.-

---------------------------------------

 

In unserer Verkaufsdokumentation finden Sie weitere Bilder, Pläne, die Beschreibung und sämtliche Angaben zu diesem Objekt.

Verkaufsdoku

Verkaufsdokumentation

Immoscout24

Inserat auf immoscout24

Ihre Vorteile

 

- erschwingliche Wohnung
- Top Preis-Leistungs-Verhältnis

- vorteilhafter Standort
- Nähe Bahnhof SBB, Einkauf, Schulen
- ruhige Wohn- und Gartenanlage

- helle, gemütliche Wohnung
- gedeckter Balkon mit Abendsonne

- Wohnfläche von 90m2

- Grosszügiges Entrée

- Reduit und eigene Waschmaschine

- Einstellhallenplatz

 

Beschreibung

 

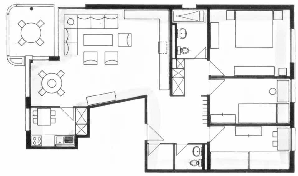
Die helle Wohnung ist mit Hauptrichtung Südwesten optimal und mit angenehmer Distanz zu den Nachbargebäuden ausgerichtet. Der Wohnungsgrundriss und die Anordnung der Zimmer und Nassräume sind sehr stimmig und äusserst zweckmässig. Die Wohnung weist rund 90m2 Nettowohnfläche auf. Das grosszügige Entrée dient als zentraler Vorplatz und Verteiler. Reduit, Separat-WC und ein Zimmer sowie das Wohnzimmer sind ab hier direkt erschlossen. Zwei weitere Zimmer und das Bad sind etwas abgetrennt und werden über einen zusätzlichen Vorplatz mit Einbauschränken erschlossen.

Das grosse, gut möblierbare Wohn- und Esszimmer ist Richtung Südwesten orientiert und weist vorgelagert den sonnigen, gedeckten Balkon auf. Die geschlossene, praktische Küche befindet sich direkt neben dem Essplatz.

 

Das Gebäude wurde ca. 1985 gebaut. Die Wohnung befindet sich in gut unterhaltenem, teilrenovierten Zustand (Innenausbau). Die Küche, das separate WC und das Badezimmer befindet sich in gutem, weitgehend originalem Zustand. Die Geräte in der Küche (Geschirrspüler, Backofen und Herdplatten) wurden erst kürzlich ersetzt.

Von den gemeinsamen Objektteilen des Gebäudes wurden vor ca. 8 bis 10 Jahren die Gasheizung ersetzt und die Fassade neu gestrichen.

Möchten Sie diese aussergewöhnliche Liegenschaft besichtigen? Sehr gerne senden wir Ihnen auch weitere Unterlagen oder Informationen.

Wie weiter

 

Herzlichen Dank für Ihr Interesse an unserer Liegenschaft. Gerne zeigen wir Ihnen dieses Objekt persönlich.

 

Müssen Sie noch Abklärungen treffen? Natürlich reservieren wir diese Liegenschaft gerne für Sie.

Gerne unterstützen wir Sie auch bei Renovations- oder Finanzierungsfragen und begleiten Sie während dem Kauf bis zur Vertragsunterzeichnung beim Notar.

 

Wir freuen uns auf Ihre Kontaktaufnahme.

 

 

Schlussbemerkungen:

Vor Abgabe unserer Verkaufsdokumentationen und Veröffentlichung unserer Internetseiten und Inserate werden diese auf Vollständigkeit und Richtigkeit betreffend Angaben, Daten, Zahlen, Bilder usw. überprüft. Trotzdem können sich Fehler einschleichen. Unsere Unterlagen dienen deshalb lediglich zur Darstellung des Objektes und sind unverbindlich.

 

Aufgrund der gemachten Angaben in der Verkaufsdokumentation oder auf den Internetseiten und Inseraten, können ausdrücklich keine Ansprüche geltend gemacht werden. Die Liegenschaft wird wie bestehend und besichtigt verkauft. Es gilt der Kaufvertrag.

Schick ImmobilienZentrum

Ringstrasse 40

4900 Langenthal

 

T +41 62 923 56 19

info@immo-z.ch

www.immo-z.ch